
Les contraintes d’une réalisation de collectivité dans le cadre d’un projet de restauration…
Le projet
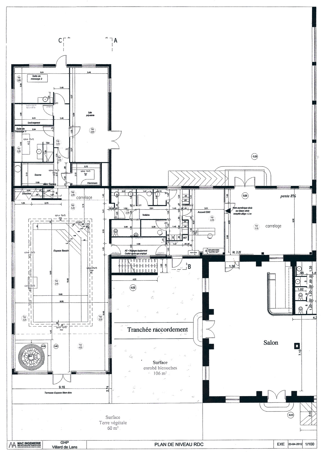
Le Grand Hôtel de Paris est implanté à Villard-de-Lans au cœur du Vercors. Avec plus d’un siècle d’existence, l’hôtel est décrit comme l’établissement le plus ancien et le plus impressionnant de la région. C’est dans le cadre d’une rénovation, avec une mise aux normes de ses équipements, qu’il est décidé de construire une extension qui accueillera un espace bien-être de 400 m² avec piscine intérieure, spa, sauna, ainsi que 2 salles de massage. Mac Ingénierie est désigné comme maître d’ouvrage et c’est l’entreprise Ceralp (38) qui est chargée de la réalisation.

Pourquoi Ceralp ?
Frédéric Lamberet : « Ceralp possède une bonne expertise dans ce type de réalisation. Nous avons à notre actif de nombreuses piscines implantées dans des clubs de gymnastique, chez des kinésithérapeutes et dans des hôtels. Nous avons certainement été consultés par Mag Ingénierie pour ce projet parce que nous avions déjà réalisé pour eux la piscine d’un espace bien-être aux 7 Laux. Nous avons pris en charge ici la réalisation de la piscine intérieure, du spa ainsi que du sauna et du hammam. »
La réalisation
« La réalisation de l’ensemble ne nous a pas posé de problème particulier, poursuit Frédéric Lamberet. Nos équipes ont l’habitude de ce type de chantier et elles en maîtrisent parfaitement les contraintes techniques. Le plus difficile a été la durée du chantier qui s’est déroulé de juin 2011 à juillet 2012, avec une longue période d’hiver rigoureux à plus de 1 000 m d’altitude. Une partie importante du chantier s’est passée dans le froid, engendrant des contraintes de travail peu confortables pour les hommes, comme pour le matériel ! Il a fallu également gérer la coordination de l’ensemble.

La réalisation de cet espace de bien-être s’inscrivait dans le programme de rénovation complète de ce vaste hôtel avec ses 45 chambres, ses 10 appartements, ses salles de réunion et ses équipements techniques… Durant toute cette période, le maître d’œuvre a organisé des réunions hebdomadaires afin d’assurer la parfaite coordination des différents chantiers et des différents corps de métier concernés. Un exemple illustre d’ailleurs parfaitement cette nécessité. Pour un hôtel de cette taille, la consommation d’électricité est très forte. Afin d’éviter la saturation de l’alimentation EDF, il a fallu mettre en place un programme de délestage consistant à supprimer l’alimentation d’un groupe d’appareils, lorsque la consommation électrique approche d’un seuil critique. Tout ça sans que cela ne nuise au fonctionnement de l’hôtel ni au confort des clients ! »




Fiche technique du projet
• Piscine intérieure : 9 m x 5 m, fond plat 1,50 m
• Escalier d’angle + banquette sur 1 longueur et 1 largeur du bassin
• Étanchéité : membrane armée DLW Delifol grise
• 3 skimmers
• Filtre à sable Carré Bleu : 25 m3/h
• Pompe Super Blue II : 1,5 ch
• Chauffage : échangeur thermique à plaque Zodiac
• Traitement : chlore liquide, régulation photocolorimétrique Blue I HG 302 (pH, redox et températures sont mesurés par des sondes classiques)
• Balnéo : uwe JetStream Viva 5 jets
• Nage à contre-courant : uwe JetStream Coco
• Fontaine Inox AstralPool / Fluidra
• Spa Odyssea à débordement (bac tampon en local technique)
• Sauna Bonhof : 2,80 m x 2,10 m
• Hammam Lux Elements : 2,70 m x 2,10 m
• Livraison de l’ensemble : juillet 2012
Carte d’identité de l’entreprise
CERALP CARRE BLEU
ZI Centr’Alp
38430 Moirans
Tél. 04 76 56 60 20
www.piscines-carrebleu.fr
Dirigeants : Alain Corsetti et Frédéric Lamberet
Effectif : 10 personnes
Création : 1979
Activité : construction, rénovation et entretien (parc d’environ 300 piscines)
Zone d’activité : Isère (38)
3 000 piscines réalisées