Dans un grand parc situé à quelques encablures des plages du Morbihan (56), un promoteur a décidé de rénover un château du XVIIe siècle… L’intégration du bassin a été confiée à Caron Piscines.
Le projet
L’objectif de cet investissement immobilier ? Transformer la demeure en un lieu de vacances prestigieux à proximité directe de la station balnéaire de Baden. Pour que la résidence puisse bénéficier d’un certain standing, le projet a dès le départ intégré la création d’une piscine.

Pourquoi Caron Piscines ?
Un appel d’offres a été lancé pour la réalisation de la piscine sans que les contours ne soient préalablement définis par le promoteur. « Nous avons proposé une géométrie de bassin qui intégrait une pataugeoire », relève Jacques Lermite, PDG de Caron Piscines. « Cette suggestion a clairement retenu l’attention des maîtres d’ouvrage. Et notre expérience dans des projets similaires les a convaincus. » L’entreprise travaille en effet régulièrement avec des architectes ou des promoteurs et dispose d’une structure permettant un suivi régulier tout au long du projet. « Trois interlocuteurs uniques se succèdent, détaille Jacques Lermite : un attaché commercial, un responsable chantier puis un responsable filtration/finition. En plus de notre bureau d’études, cette organisation simplifie les échanges avec l’architecte et le maître d’ouvrage. Les interlocuteurs professionnels y sont particulièrement attachés. Il est par ailleurs intéressant de noter un regain de projets menés par ce type de commanditaires : discrets au plus fort de la crise, ils ont tendance à retrouver un certain dynamisme sur le marché de la piscine. »

Réalisation
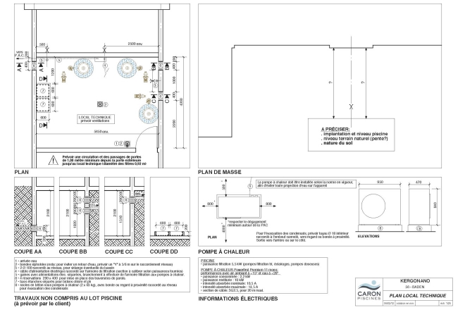
Dans un projet de ce type, la principale contrainte relève d’un calendrier quasi immuable, fixé parfois plusieurs mois avant l’intervention du piscinier. Il s’agit d’une procédure très codifiée, avec des rendus de documents qui doivent se faire à des dates butoirs et une échéance finale très précise. La réalisation du bassin est scindée en différentes phases parfois très espacées dans le temps. « Nos venues se sont échelonnées sur près de six mois, mais notre présence effective sur site s’élève seulement à une grosse quinzaine de jours », note Jacques Lermite. Caron Piscines a même été intégrée aux réunions de chantier dès le départ. « Notre bureau d’études a de cette manière anticipé les installations en intégrant aux plans des espaces réservés aux canalisations et un local technique qui a pris place au sous-sol de la résidence. C’est également lui qui prévoit des installations électriques en conformité avec la norme afin de satisfaire la visite du Consuel. »

Par rapport au projet initial, la pataugeoire a été légèrement décalée du reste du bassin afin d’agrandir l’espace dédié aux enfants et de rompre l’homogénéité de l’ensemble. Le choix d’un revêtement antidérapant répond à un besoin de confort et de sécurité pour les utilisateurs. Seule la partie la plus profonde n’en est pas pourvue pour se différencier.
Le Château de Kergonano a ouvert ses portes en avril 2013 sous la gestion d’Odalys, société spécialisée dans l’hébergement touristique et la valorisation immobilière.

Fiche technique du projet
• Piscine extérieure : 16 m × 6 m, fond plat confort 1,10 m et 1,50 m avec une marche de repos sur 50 cm de large
• Escalier de 2,15 m avec 6 marches dont une très large en bain de soleil
• Structure : panneaux en béton armé (hauteur 1,20 m)
• Pataugeoire intégrée avec escalier d’angle (4,50 m × 2,85 m, profondeur 30 à 40 cm)
• Étanchéité : membrane armée 150/100e Renolit Alkorplan, couleur bleue et finition antidérapante sur les marches, le fond à 1,10 m et les pans inclinés
• Hydraulicité : 6 skimmers, 3 refoulements de fond, 6 buses de refoulement orientables, 3 bondes de fond et 2 prises balai
• 3 filtres à sable RTM Excellence Ø 920 (Procopi)
• 3 pompes 22 m³/h Tifon (Espa)
• Traitement : chlore liquide. 2 pompes doseuses électromagnétiques Emec 320 pour le chlore et pour le pH (Procopi), photomètre PoolTest 6 (Palintest chez Procopi)
• Pompe à chaleur 25 Tri (Zodiac)
• Régulateur de niveau d’eau automatique, compteur d’eau couplé à un disconnecteur
• Margelles en pierre reconstituée.
Carte d’identité de l’entreprise
CARON PISCINES
Rond-point de La Belle Étoile
44484 Carquefou Cedex
Tél. 02 51 13 08 50
www.piscines-caron.com
Dirigeants : Jacques Lermite (PDG) et Jean Lermite (DG)
Effectif : 42 personnes
Création : 1953, activité piscine depuis 1983
Activité : construction (95 %) et rénovation/réhabilitation (5 %)
Clientèle : particuliers (82 à 83 %) et collectivités privées ou publiques (7 à 8 %)
Zone d’activité : tous les départements limitrophes de la Loire-Atlantique (35, 53, 56, 44, 49, 72, 85)